
How To Read And Study 11kv Stelmec Panel Control Circuit In Closing And Tripping Circuit Diagram Youtube

132 Kv Breaker Complete Control Circuit Diagram Reference Siemens Make Youtube

33 Kv Circuit Breaker Relay Panel Control Wiring Interconnection Wiring Schedule Control Wiring 7 Youtube

Technical Specification Of 11 Kv Scada Controlled Indoor Switchgear With Interlocking Diagrams Eep

Technical Specification Of 33 11 Kv 2x31 5 Mva Power Substations Eep
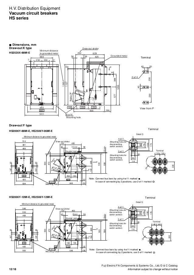
Diagram Control Wiring Diagram Of Vcb Full Version Hd Quality Of Vcb Housediagram Riciclolio Life It

High Voltage Vacuum Circuit Breaker Yueqing Liyond Electric Co Ltd Yueqing Liyond Electric Co Ltd

Diagram Abb Power Circuit Breaker Wiring Diagram Full Version Hd Quality Wiring Diagram Outletdiagram Amfo It
Http Search Ext Abb Com Library Download Aspx Documentid 9akk105152a2297 Ext Languagecode En Documentpartid Action Launch

Air Circuit Breaker Or Air Blast Circuit Breaker What Is It Electrical4u
11 Kv Vcb Industrial Electrical Automation Hacks

How To Read Electrical Panel Drawing Diagram Part 2 In Hindi Yk Electrical Youtube

Circuit Breaker Control Schematic Explained
Http Search Ext Abb Com Library Download Aspx Documentid 9akk105152a2297 Ext Languagecode En Documentpartid Action Launch
11kv Control Panel Wiring Diagram




